Home > Projects > Kiawah Island > Kiawah Island Lot 491

Kiawah Island - Lot 491

Kiawah Island, SC | 2024 (Under Construction) | Stout Studio Collaboration | New-Build

Kiawah Island - Lot 491

Kiawah Island, SC | 2024 (Under Construction) | Stout Studio Collaboration | New-Build

A collaborative project done with North Carolina based Architecture Firm, Stout Studio, Kiawah Island Lot 495 stands as a testament to harmonious design and thoughtful integration within the Kiawah Island landscape.

Nestled amidst the lush sub-tropical foliage of South Carolina, this multi-story residence offers as a retreat close to both the ocean and a golf course and country club. Featuring an open ground level elevated above the floodplain, the house seamlessly blends outdoor and indoor living spaces, surrounded by palmetto trees and live oaks.

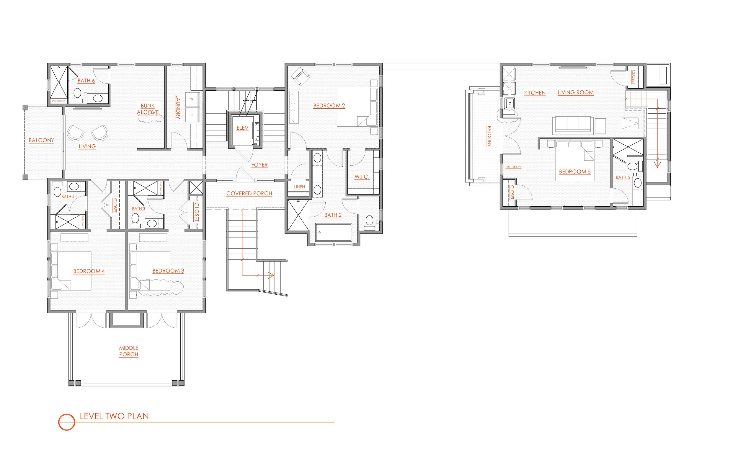
Lot 491 is a three-story building with a detached garage and an in-law suite apartment above it. The first floor features garage space and an outdoor covered living area. The second floor contains the bedrooms and outdoor balconies, allowing residents to enjoy the serene environment from multiple vantage points.

The third floor is dedicated to the living space, highlighted by a large kitchen with an additional scullery kitchen in the back, perfect for culinary enthusiasts. An upper porch, centered around a fireplace that also warms the main living room inside, creates a cozy, inviting atmosphere. With balconies on every level, residents are encouraged to step outside and immerse themselves in the beauty of South Carolina's Kiawah Island landscape. Each balcony serves as a private oasis to appreciate the surrounding scenery and coastal breeze.